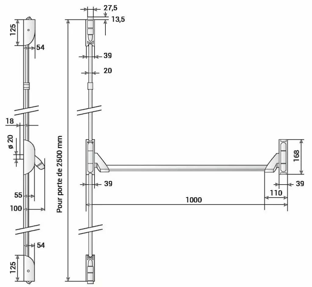
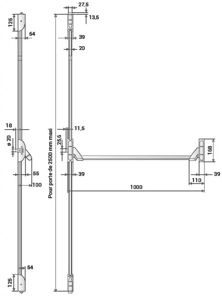
Norme NF EN 1125. Version pour pour portes bois – métal, coupe-feu, lui permettant
d’équiper tous types de portes. Tringle haute télescopique réglable.
Tringles acier et cache-tringles en aluminium peints époxy.
Pêne latéral médian en acier / zamak.
Réversibilité rapide et simple grâce à son système de rotule pivotante.
Pour porte de largeur 850 mm et hauteur maxi. 2500 mm. Epaisseur maxi. 80 mm.
Facilement recoupable sur site. Haute résistance au vandalisme.
240 heures brouillard salin. Très haute résistance à la corrosion. Répond à la norme CE.












































Avis
Il n’y a pas encore d’avis.